About Niskanen Hall
Niskanen Hall is a Residence Hall that provides 175 non-first-year students with a fully furnished, apartment-style unit. Located directly east of the Fargodome, Niskanen Hall is within walking distance of campus but also offers an on-site bike share and bus stop for quick travel. The Hall Director and Resident Assistants develop one-on-one relationships with each resident and make sure they are supported in their academic and personal pursuits. The Niskanen Hall Staff will always strive to make your community your home and ensure that you always have someone to talk to, whether it be about your successes or challenges. No matter where you are in your college or life adventure, you are welcome at Niskanen Hall to be who you are and continue growing into who you strive to be.
Eligibility: Available to any non-first-year student
Meal plan: Not required
Housing Type: Residence Hall (Residence Halls are open during the academic year only, billing is per semester, and units are furnished.)
Amenities and Features
Every hall has its own unique amenities and features, but all halls offer the following: coinless laundry, cleaning supplies, free video streaming services, rec lounges, study lounges, NDSU Spectrum newspaper service, community kitchen, wifi, secure keyless card entrances, and a hall office where individuals can check out various games/videos/entertainment/rec equipment.
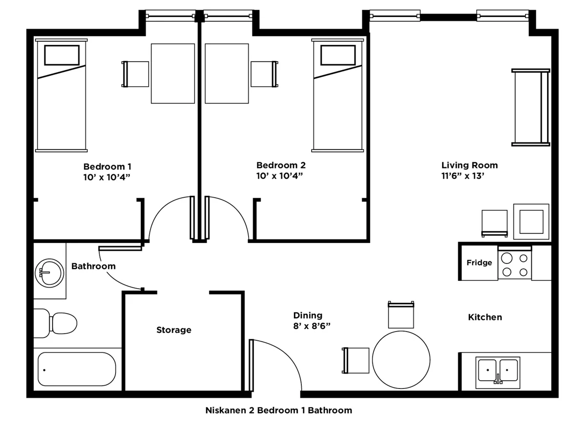
North and South:
Two single bedrooms, one bathroom, living room, large storage closet, full kitchen with microwave, and window air-conditioning unit. North and South offer single/private rooms meaning each unit will have two residents vs four. Bedrooms are carpeted. Pots, pans, utensils and cleaning supplies are not provided; toilet paper is provided.
- Bed, linen and loft information
- Niskanen South Room Numbers:
- First Floor: 67-74
- Second Floor: 75-82
- Niskanen North Room Numbers:
- First Floor: 281-288
- Second Floor: 289-296
*North and South are identical buildings. The 360 tour is of Niskanen South, but represents both buildings. *Living room now comes with two full-size comfy chairs (couch pictured is not included).
Middle:
Two double bedrooms, two bathrooms, living room, full kitchen with dishwasher, and central air. Bedrooms are carpeted. Pots, pans, utensils and cleaning supplies are not provided; toilet paper provided. *Living room now comes with two full-size comfy chairs (couch pictured is not included).
- Bed, linen and loft information
- Nisaknen Middle Room Numbers:
- First Floor: 297-306
- Second Floor: 307-316
- Third Floor: 317-326
2025/2026 Rates
Middle: Fall: $2,695 | Spring: $2,205 | Total: $4,900
North and South: Fall: $2,970 | Spring: $2,430 | Total: $5,400
2026-27 Rates
Middle: Fall: $2,805 | Spring: $2,295 | Total: $5,100
North: Fall: $3,080 | Spring: $2,520 | Total: $5,600
Mailing Information

Meet the Niskanen Hall Director
Rachael Swift
How’s is going, folks? My name’s Rachael (she/her & they/them pronouns) and I am the Hall Director for Niskanen Hall (Middle, North, and South)! I spent the first 15yrs of my life growing up on a river in the middle of the woods on the Eastern Shore of Maryland, then spent the next 15yrs in the heart of the City of Boston in Massachusetts when I attended university. I was an RA in one of Northeastern University’s (NU) upper-division halls throughout my undergrad degree and received my Bachelors in English there in 2019. From there, I kept working at NU in Student Center Operations and Events, then later worked client services through the emergency room at Angell Animal Medical Center. Now, my love for a good adventure has brought me to North Dakota and NDSU, and I’m excited to see what the next 15yrs bring (for synchronicity’s sake, if nothing more). When I’m not in my office, you can usually find me playing video games (if you ask me about RDR2 or the Witcher—I WILL ramble), cooking/baking, writing novels that will never be finished, or reading a good book. (If you can’t find me, I’m likely outside touching grass—possibly fishing, maybe buying more plants/books I don’t need).
I love being in Residence Life largely because I enjoy being part of a community and experiencing a good story—which people always have. My advice for anyone arriving to Niskanen—or upper division housing in general—is to get involved in the Hall! You have amazing RAs, talented Hall Government teams (which you can and should be part of), and all sorts of fun and curious neighbors sharing your home. And if you need anything, you can come find me; I’m always glad to see you and look forward to fostering a safe and connected community with you.
Phone: (701) 231-4390
Email: Rachael.Swift@ndsu.edu
Niskanen North and South: Renderings, Floorplans, and Photos


Niskanen Middle: Renderings, Floorplans, and Photos


